单位参赛作品

MENTors

+
Back
当前位置:首页 > 参赛作品 > 单位参赛作品
0

浙江都都装饰有限公司诸暨分公司

作品名称:中南樾府-现代轻奢
城市:诸暨
案例小区:中南樾府

公司简介:

都都国际整装诸暨分公司是专业从事别墅、排屋、商品房住宅、工装的室内装修设计与施工一体化的资质装修企业。2001年起步历经十余年发展至今,已在杭城及其周边开设多家分公司。都都一路前行,荣获:质量信誉消费者满意AAA单位、绿色环保重点推荐单位、质量诚信单位、省装饰业十佳单位、连续多年在杭城获得家装奥斯卡奖。 都都装饰 2015年在家装行业首先提出了颠覆性的服务模式——家居“整装”新概念。将硬装、软装、配饰设计团队整合设计,现已经成为业界的标杆。一站式整装服务模式的落地,正式成为标志着提升家装界服务方式的一个里程碑。它将帮助客户节省时间、心力、金钱,突出环保健康、品牌保证、设计卓越、监理保障,让顾客体验到超级的尊享! “重质量赢客户,以口碑传都都”,都都装饰在眼界、境界、无界的引领下,脚踏实地活在当下,成就梦想,超越自我。我们在路上,朝着成为中国家居装饰行业领导者的战略目标奔跑!

当前得票:24

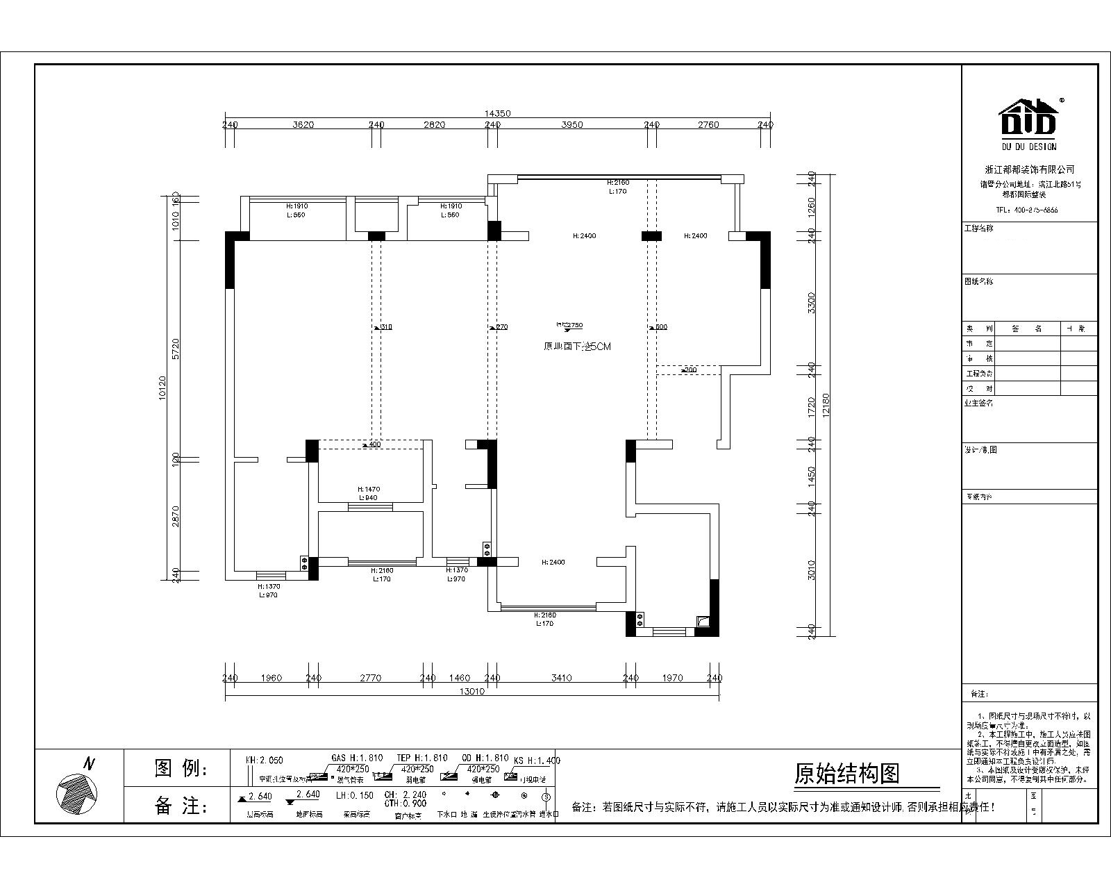
户型图

户型说明

户型比较方正,三房朝南比较通透,框架结构,可改动性较大,外扩可利用空间包进房间,可以再设计出一个书房空间

施工设计图

施工设计说明

一家三口居住,设计了三个房间+一个书房,客餐厅比较宽敞大气,吊顶是点睛之笔。超大景观阳台休憩的好去处。主卧设计了大套房,满足了女主人对走入式大衣帽间的功能需求的同时卫生间也比较宽敞,次卧与过道两组储物柜满足了日常生活中的储物所需,飘窗敲掉包进卧室,增大了两个卧室的空间

水路施工图

电路施工图

泥瓦施工图

木工施工图

涂料施工图

暖通施工图

施工说明

框架结构,墙体基本全都是现场砌墙,无地暖,柜子成品定制,墙面皮雕