单位参赛作品

MENTors

+
Back
当前位置:首页 > 参赛作品 > 单位参赛作品
0

杭州市诚墅装饰工程有限公司

作品名称:现代新中式
城市:杭州
案例小区:建华东苑

公司简介:

公司成立于2019年,团队扎根下沙,临平十来年之久。成功开发多个小区 服务宗旨:客户满意为第一原则 团队信念:认真、合作、坚守承诺 管理原则:以人为本,理性公正 责任落实,有效沟通 质量理念:品质就是生命,砸品质就是砸生命

当前得票:117

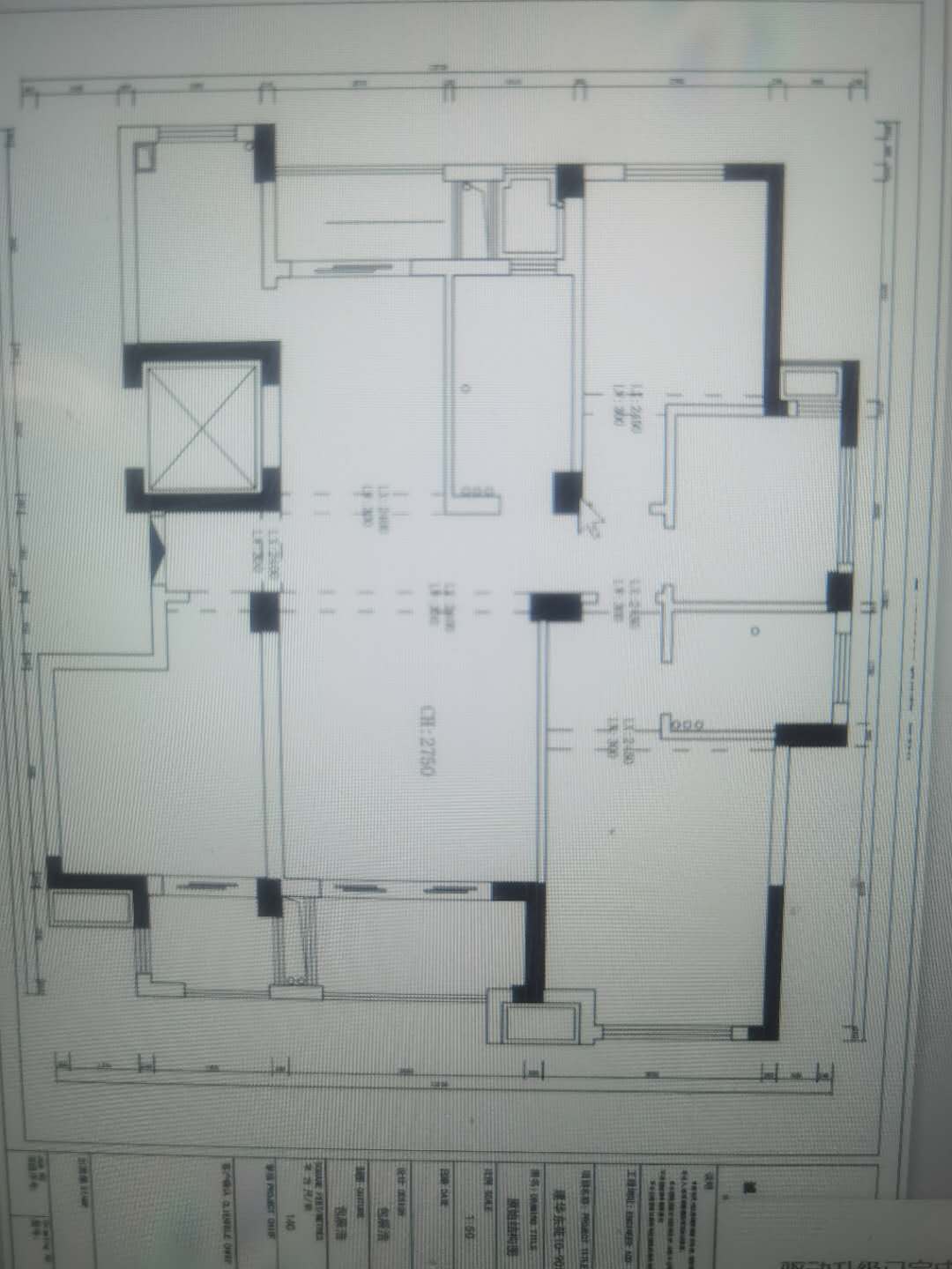
户型图

户型说明

优点:150平4房,很方正的四房户型,可利用的面积大。

施工设计图

施工设计说明

木饰面板加硬包组合 卫生间改造成干湿分离,这样既美观也实用 木工现场打了多功能鞋柜,长隔层区可以摆放临时外套,包包,钥匙等,抽屉上面还能坐下换个鞋子,满足日常生活所需。 走廊较长,因此挑选了一副大气挂画,点亮这里的空间,让入户主人公眼前一亮,同时将厨房的一面墙内移了一下,打了书架,也是为了丰富走廊的布局,让路过走廊的人不显得单调,有书可看,有景可赏。 客餐厅风格统一,动线流畅,色彩稳重,突出了现代风格的格调,一体餐边柜,又增添了不少储物功能。 主卧清心素,简约大方,主卧原有的卫生间门封起在这里打了一排衣柜,便于衣物收藏。 书房现场打了书桌和书架,这样令学习空间和置物空间都兼顾到,白色也令空间清爽干净,有利于学习和办公。

水路施工图

电路施工图

泥瓦施工图

木工施工图

涂料施工图

暖通施工图

施工说明

水电对接。 水电开槽墙地面,墙面横槽不能超过一米。除厨房水槽下方和个别区域实际情况来定。 有剪力墙处尽量不要把主钢筋切断。尽量移位避开。墙面不能在一个位置正反面同时开槽,避免破坏墙体。开槽深度和宽度一般按线管的。1.5倍计算。20线管,直径是两公分,也就是深度三公分,宽度三公分。 线盒安装平整。强弱电箱,线盒用索姆(锁扣)连结,每个房间线盒安装允许半公分以内误差。厨房卫生间贴瓷砖墙面允许两毫米误差。 电线管顶面,墙面,地面布管垂直平整,固定牢固。电线管布管,建议强弱电零交叉。(实际情况如果个别区域没办法避免,就用锡箔纸或者金属桥湾做过度抗干扰处理。)尽量布置地面管走大弯,也就是弯弧度大于135度左右。就是转角处90度大于20公分。(20线管的10倍。) 《电缆绝缘和护套材料通用检测方法》GB/T2951-1997 《电线电缆及塑料电性能检测方法》GB/T3048-1997 《额定电压450/750V及以下聚氯乙烯绝缘电缆和软线》JB8734-1998 《额定电压450/750V及以下聚氯乙烯绝缘电缆》GB5023-1997 《建筑节能工程施工质量验收规范》 GB50411-2007。 16平方以下同线铜径。零线,火线,地线同样大小。10,6,4,2.5,1.5,1平方。 每根线管穿线,20线管2.5平方电线可以穿4根电线。20线管1.5平方可以穿6根。墙面布置时水头要在下面,插座线盒在上面。间距不可以少于5公分(也就是俗称电上水下。)插座距离燃气位置至少30公分,包括燃气灶位置。不同回路,零,火,地线穿不同回路的线管,不可以把开关或者插座同穿一根线管。 建议配电箱。总开不带漏保,分回路全部带漏保费用在一千几百到2000左右。经济实惠型。总开带漏保,冰箱从总开上方走带漏保。监控和弱电带漏保(就是说出远门了,家里面把总闸关掉,冰箱,监控和弱电箱长期有点电,万一有问题空开带漏保也会跳闸) 给水管安装。焊接头牢固方正,墙面顶面水管布置平整,垂直。顶面固定管卡固定转角处15~20公分左右,中间间距60公分左右。水头距离墙面一般预留一公分半到两公分左右。橱柜手槽下方,洗手盆柜体下方一般预留完成面出来6~8公分左右。避免影响三角阀正常安装。焊接是否牢靠,主要以给水管打压为准6~8MPa,(买的给水管皮尔萨的伟星都是厂家上门打压) 地面排水管,连接处有多处分头需用斜三通,弯头处与原先地漏位置衔接处尽量插紧,避免有间隙渗水。排水管焊接连接件打胶均匀,避免渗水。并注意地漏位置与坡度。避免返工或者地漏反水。 贴砖与地面防水对接已告知泥工师傅。 主客卫生间阳台水电开槽,排水管沟槽内需刷堵漏王或者防水。在安装固定排水管并注意坡度。(尤其是阳台有洗衣机处的地漏。) 贴墙面砖前需自检水电开槽的墙面。因水电开槽,局部墙面粉刷层有轻微空鼓。如有需铲掉,重新粉刷修补。 主客卫生间墙面修补完成后。墙面涂刷1~2遍防水。涂刷墙面高度最好置顶或者是最上方贴砖位置,一般常规高的是2米4。(墙面一般使用通用型或者是墙面防水。) 地面防水在施工前。需用水泥砂浆,加防水剂,瓜子片浇筑2~3公分厚收光找平,主客卫生间四周阴角处做r角,(45度钝角)在涂刷柔韧性防水。从墙角跟上去30公分一圈四周。涂刷地面防水时,需横向竖向十字交叉涂刷三遍。在安装门槛石。卫生间门槛石需湿铺,淋浴房挡水条安装前里面需灌浆,与墙面衔接左右两侧间隙处涂刷堵漏王或者是防水。(如果是地面防水做好,先做闭水试验门槛石和挡水条,后面再安装。那安装门槛石或者挡水条和地面衔接处需重点做防水,二次涂刷) 一般瓷砖墙面贴好后,3~5天才初步检查空鼓。泥木验收时再重新复查一遍。单块瓷砖允许范围是15%空鼓,整面墙是5块砖在10%以下。如果5块砖在10%以上需更换处理。 检查瓷砖表面垂直度,平整度在2~3毫米左右。阴阳角是否方正方误差在三毫米左右。瓷砖所有拼缝大小是否均匀。 淋浴房地面坡度大于5%(就是半公分以上),卫生间干区地面坡度要大于3%到5%(就是三毫米到半公分左右,有时候因为卫生间马桶管移位贴砖,经过排水管处最起码要三公分灰浆才能贴砖,等地面抬高8公分,有时候家里面没有地暖的话,确实干区坡度基本持平,地面铺贴600以上的地砖也是没有坡度的) 全房所有卫生间阳台地漏里面不能有明显砂浆。拆卸方便容易全房所有地漏排水通畅。 轻钢龙骨吊顶。现场有制作的柜体,轻钢龙骨吊顶,上方龙骨吊顶基层可以不用增加主龙骨。超过60以上宽度中间没有中央空调的位置,里面需增加主龙骨并增加吊杆,间距是在一米以内,起头打眼是20公分到30公分左右。主龙骨与副龙骨搭接牢靠,连接牢固平整。靠墙一侧边龙骨,如果是梁上或者是混泥土,剪力墙需打眼固定。起头打眼位置20公分左右,中间间距保持在60公分以下。底板副龙骨与挂板竖龙骨横向竖向连接,间距保持在400以内。7字转角挂板龙骨需连接成整体。(如果用木工板,七字转角连接成整体。) 封石膏板,空调出风口回风口需用石膏整板。7字转角需用整版。石膏板与石膏板之间预留缝隙半公分左右。 所有门套基层最好不要直接落地,地面完成面,最好抬高一公分以上。卫生间厨房门套基层需增加防潮纸。 现场制作的柜子。横向竖向平整牢靠与墙体连接牢固。免漆板柜子里面的隔板不能有明显爆边。或者是刚排钉钉眼。收口条固定牢固,不能有明显松动。柜体下方外口挡板里面需横向增加木板或者中间增加支撑脚。避免下方柜体受力变形。 全房油工基层施工 全房墙顶面有,铁钉木屑或者膨胀螺丝需清理干净。全房墙面顶面,滚刷胶水或界面剂。新老墙衔接处,水电开槽位置,石膏板顶面,或墙面,石膏面层拼缝处。需填拉法剂(填缝剂),零星修补位置。原墙面老盒子废弃不用的,水泥沙浆封堵掉的位置。用牛皮纸粘贴,做抗裂处理,全房阴角阳角,需用阴阳角条修直修正。再用2米大板检查墙顶面,在用找平石膏,做基层修平墙顶面,再做2~3遍腻子。每一遍要等基层干透,在上面做一层(,如果做有颜色的乳胶漆。建议砂纸打磨完成后,全房批腻子膏,盖掉全房批刮印子,凹凸面以及气孔,再用细砂纸轻微打磨,打磨时全房带灯照,一边打磨一边照)。顶面底漆做好,直接做面漆。墙面要等到家里面木地板踢脚线,门套,成品柜子全部安装到位,修补好后,再整体刷底漆等家具基本进场,等快要做保洁时全房涂刷乳胶漆,避免全房到处磕碰。